x
≡ каталог
О компании Галерея Контакты

Дизайн интерьера частного дома 3D, 3Д визуализация
по цене 6/м2

видео
Дизайн интерьера частного дома 3D, 3Д визуализация   Дизайн интерьера частного дома 3D, 3Д визуализация — по цене 6/м2

Индивидуальное проектирование домов в Минске и в Беларуси. Специалисты архитектурно-строительной компании Archiline занимаются индивидуальным проектированием на профессиональном уровне. Нужен проект? Жмите!

Процесс проектирования деревянного дома начинается с планировок, фасадов, затем расчета объемом материала и предварительной сметы, но это все сухие схемы и цифры. Но важно понимать как будут освещаться помещения, какие базовые цвета взять за основу и т.д. Чтобы наш заказчик мог представить себе как будет ощущаться пространство и как будет выглядеть его будущий дом внутри мы предлагаем услуги 3D визуализации. Благодаря чему, можно увидеть как будут выглядеть помещения готовые под финишную отделку и декор дом.

ПЛАНИРОВКА ДОМА:
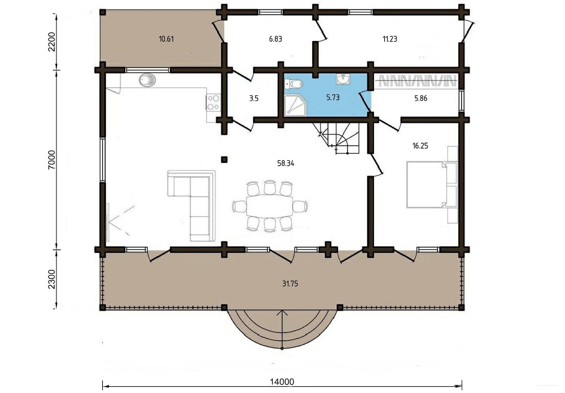
На первом этаже располагаются: тамбур, топочная, просторная кухня-гостиная с выходом на террасу, спальная комната с отдельным гардеробом и санитарным узлом:

.
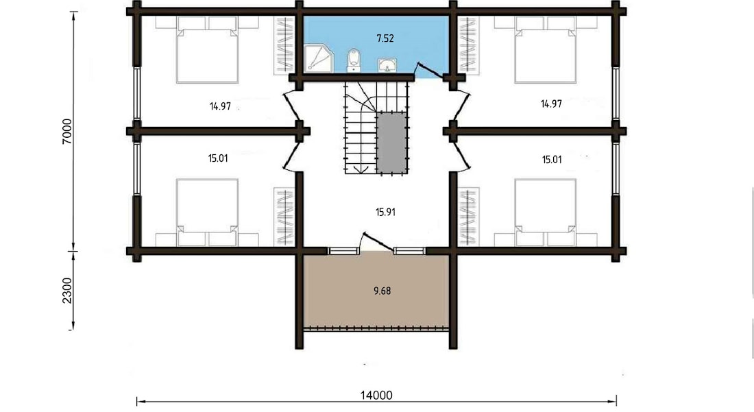
На втором: 4 спальные комнаты, совмещенный санитарный узел:

.
Описание дизайна интерьера частного дома:

Дизайн интерьера «Белого дома» - элитный, светлый и воздушный, с очень хорошим содержанием
БОЛЬШОЙ ВИДЕО-ОБЗОР ДИЗАЙНА ИНТЕРЬЕРА ДОМА:



БОЛЬШОЙ 3D ТУР ПО ДИЗАЙНУ ИНТЕРЬЕРА ДОМА:
.
.
ВНЕШНИЙ ВИД:
Большая часть окон в пол, что дает много света и зрительно возносит фасад. Окна в доме деревянные, выполнены сразу с наличниками и откосами:

Благодаря входной группе с крыльцом, террасе и широкому балкону, постройка выглядит очень выразительно. Теплый белый оттенок наружной отделки стен хорошо сочетается с цветовой палитрой ландшафта:

Но вернемся к дому. Внутрь можно попасть двумя способами: через главный вход или террасу:

Войдя в дом через главный вход, мы обнаруживаем себя в тамбуре, где удобно разместились вешалка для одежды и шкаф для хранения вещей:

.

.

.
Дверь напротив - вход в котельную. Отопление в доме выполнено посредством газового котла. В котельную можно попасть как из тамбура, так и снаружи, имеется отдельный вход с улицы:

Не задерживаемся и проходим в основную часть дома:

Стены гостиной окрашены составом Тиккурила "Панели-Ясся": лак полуматовый белый, для внутренних поверхностей дома из бруса, потолки отделаны декоративной штукатуркой, а на полу уложена стильная плитка:


.

.
Все это создает атмосферу тепла и уюта в доме:

.

.
Зона гостиной:

.

.

.

.
Кухонная зона:

.

.

.

.
Также на первом этаже нашлось место спальне, площадью 17 м2 :

.

.

.
В спальне своя гардеробная (не вошла в обзор) и отдельный санузел с ванной:

.

.

.

.
Неотъемлемой частью интерьера является кованная лестница, по деревянным ступеням которой, мы можем подняться на второй этаж:

.
.

.
Из общего пространства второго этажа попадаем на прекрасный балкон, а также в четыре комнаты и общий санитарный узел:

.
.
Оригинальное освещение:

.

.
Проходим в жилые комнаты:

.

.

.
Детская комната:

.

.

.

.
Вторая детская:

.

.
В санузле на втором этаже расположены два больших мансардных окна. Такие окна устанавливают в доме, где угол кровли не более 25 градусов:

.

.

.







Если Вас заинтересовали описанные в статье товары и услуги, Вы можете:



Ещё из раздела Дизайн интерьера деревянного дома

    Дизайн интерьера деревянного дома "Система" Индивидуальное проектирование домов в Минске. Специалисты архитектурно-строительной компании Archiline занимаются индивидуальным проектированием на профессиональном уровне. Нужен дизайн деревянного дома? ...
      Дизайн интерьера, визуализация интерьера — 6 рублей м. кв. Во время работы над проектом интерьера заказчику важно представлять как будет выглядеть его будущий дом, как он будет смотреться внутри, какой цвет стен, какой цвет плитки выбрать и т.п. ...
        Дизайн интерьера деревянного дома из клеенного бруса — цена от 6 руб/м2 Индивидуальное проектирование домов в Минске. Специалисты архитектурно-строительной компании Archiline занимаются индивидуальным проектированием на профессиональном уровне. ...
          Керамическая плитка - мозаика позволяет создавать панно любой стилистики, в любых цветовых сочетаниях и для всевозможных типов интерьеров. Минимальный пиксель равный 1*1 см позволяет качественно передавать оттенки и цвета на панно размером от 2*3 ...
          © 2025 ArchiLine Wooden Houses
          Беларусь, 220068, г. Минск, ул. Некрасова, 114, офис 49.
                                            

          Сайт работает на платформе Nestorclub.com