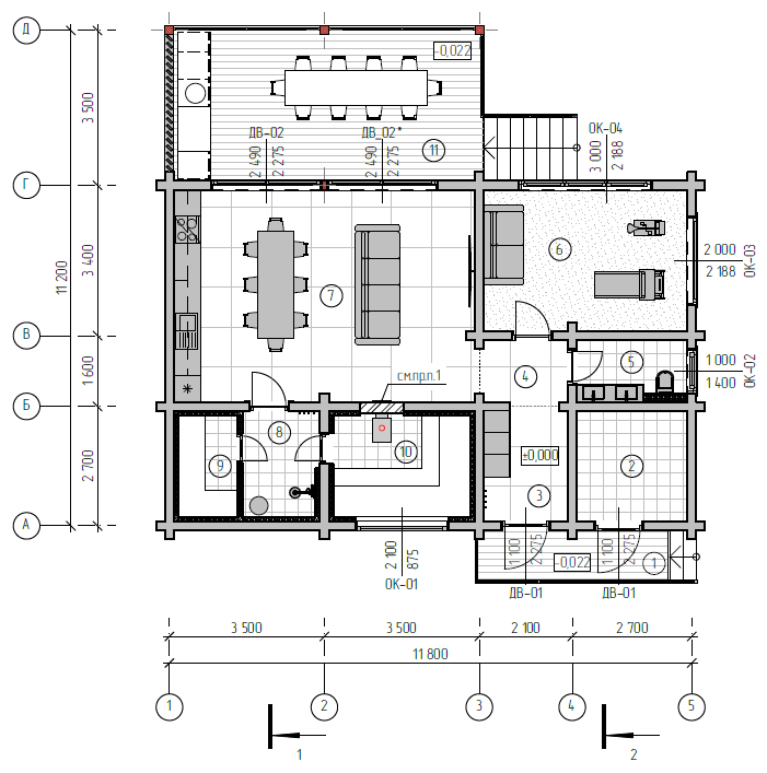
Общая площадь дома — 109,40 м², площадь с коэффициентом — 88,26 м². Планировка делится на входную, жилую и оздоровительную зоны. С крыльца 5,20 м² вы попадаете в тёплый тамбур 4,86 м² и удобную прихожую 7,19 м² — решение, актуальное для холодного климата.
Центральное пространство дома — кухня-гостиная 32,66 м². Здесь удобно готовить, собираться всей семьёй и принимать гостей. Большие окна наполняют дом светом, а открытая планировка создаёт ощущение простора. Рядом расположена комната отдыха 14,68 м² — её можно использовать как спальню, гостевую или кабинет.
Изюминка проекта «Норд 109» — банно-оздоровительная зона. В доме предусмотрены:

-
помывочная — 4,33 м²;
-
хаммам — 3,06 м²;
-
санузел — 3,30 м².
Такой формат делает дом не просто жилым, а полноценным пространством для отдыха и восстановления.
Для инженерных систем предусмотрена топочная 6,25 м². Коридор 2,87 м² связывает все помещения, не отнимая лишнюю площадь. Терраса 25,00 м² расширяет жилое пространство в тёплое время года и идеально подходит для отдыха на свежем воздухе.
Дом из клееного бруса отличается высокой теплоизоляцией, экологичностью и долговечностью. Клееный брус не коробится, не трескается и сохраняет геометрию стен на протяжении многих лет. Строительство дома из клееного бруса позволяет быстро получить тёплый, надёжный и эстетичный деревянный дом.
Проект «Норд 109» — это идеальный выбор для тех, кто хочет компактный, функциональный и красивый дом из клееного бруса для постоянного проживания или загородного отдыха.
Archiline Wooden Houses since 2004


