x
≡ каталог
О компании Галерея Контакты

[COPY-771-773] Деревянный дом из клееного бруса «Комфорт Квадро 148»
проект 2025 года

[COPY-771-773] Деревянный дом из клееного бруса «Комфорт Квадро 148»

Деревянный дом из клееного бруса «Комфорт Квадро 148» - дом для постоянного проживания. В доме есть все необходимое
..................................................................................................................................................................................................
.
ОСНОВНАЯ ИНФОРМАЦИЯ:

Количество этажей:1Количество спален2
Жилая площадь141 m2Площадь помещений всех этажей:148,44 m2
Площадь террас и балконов:8 m2 (2,4 m2)Цена:по запросу
Материал стен:Профилированный клеенный брус (200х185 mm)*
Материал кровли:Керамическая черепица*
Фундамент:Свайно-ростверковый с монолитной плитой*
Окна:Деревянные*
*Материалы могут меняться в зависимости от пожеланий заказчика

Проект одноэтажного дома из клееного бруса разработан для комфортной жизни семьи любого состава. Это современный деревянный дом с продуманной планировкой, где сочетаются функциональность, уют и рациональное использование площади.

Общая площадь дома — 148,44 м², полезная (с коэффициентом) — 143,20 м². Планировка включает просторную кухню 15,69 м², столовую 15,70 м² и гостиную 10,42 м², объединённые в удобную дневную зону. Такое решение делает дом из клееного бруса светлым, открытым и удобным для приёма гостей и семейного отдыха.



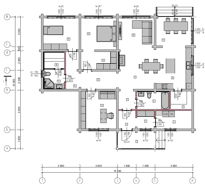
ПЛАНИРОВКА ДОМА:
.
КРАТКОЕ ОПИСАНИЕ ПРОЕКТА:
.

В жилой части предусмотрены:

  • мастер-спальня — 11,74 м²;

  • детская — 11,62 м²;

  • кабинет — 13,68 м²;

  • спальня — 10,31 м²;

  • дополнительная гостиная — 10,42 м².

  • Есть гардеробные, кладовые, котельная, несколько санузлов, коридоры и тамбур, что делает проект дома максимально удобным для постоянного проживания.

Такой дом из клееного бруса подходит как для загородного проживания, так и для дома постоянного проживания. Клееный брус обеспечивает высокую теплоизоляцию, долговечность, экологичность и стабильную геометрию стен. Строительство дома из клееного бруса позволяет получить тёплый, надёжный и эстетичный деревянный дом за короткие сроки.

Этот проект дома — отличный выбор для тех, кто ценит комфорт, натуральные материалы и современную планировку в формате одноэтажного дома из клееного бруса.


.


..
Окна в доме деревянные с двухкамерными стеклопакетами, с откосами и наличниками, окрашенными на заводе способом импрегнации. Выбор мало уклонной крыши не случаен: она подчеркивает надежность клееных конструкций и придает постройке современный вид:



Категория
одноэтажные дома
Количество спален
2
Материал стен
клееный брус
Тэг
купить деревянный дом из бруса
Особенности
дом с террасой


Если вас заинтересовала представленная информация или вы не нашли нужный товар или услугу, пожалуйста, позвоните или отправьте запрос на консультацию:



Ещё из раздела Новые проекты деревянных домов 2026 года (в проектировании и строительстве)

    Проектирование, производство и строительство деревянного дома в Нальчике: Проект: Начало строительства. Фундамент: Компания "Архилайн" из Минска славится своими высококачественными проектами и строительством деревянных домов. На этот раз они берутся ...
    • Категория: одноэтажные дома
    • Количество спален: 2
    • Материал стен: клееный брус
    Деревянный дом из клееного бруса с террасой «Евродвушка» - небольшой дом для постоянного проживания небольшой семьи. В доме есть все необходимое ...
    • Категория: одноэтажные дома
    • Количество спален: 2
    • Материал стен: клееный брус
    Деревянный дом из клееного бруса «Комфорт Квадро 148» - дом для постоянного проживания. В доме есть все необходимое ...
    • Категория: одноэтажные дома
    • Количество спален: 2
    • Материал стен: клееный брус
    Деревянный дом из клееного бруса «Комфорт Квадро 148» - дом для постоянного проживания. В доме есть все необходимое ...
      Деревянный дом из клееного бруса с террасой «Евросемерка-2» - дом для постоянного проживания небольшой семьи. В доме есть все необходимое ...
        Деревянный дом из клееного бруса с террасой «Евросемерка» - дом для постоянного проживания небольшой семьи. В доме есть все необходимое ...
          Деревянный дом из клееного бруса с террасой "Комплекс Галица" - дом для постоянного проживания небольшой семьи. В доме есть все необходимое ...
          © 2026 ArchiLine Wooden Houses
          Беларусь, 220068, г. Минск, ул. Некрасова, 114, офис 49.

          Сайт работает на платформе Nestorclub.com