x
≡ каталог
О компании Галерея Контакты

Финский деревянный дом "Хельсинки", 101 м²
6-Д

Финский деревянный дом "Хельсинки", 101 м²   Финский деревянный дом с террасой "Хельсинки" отлично подойдет для тех, кто ищет небольшой дом, который будет использоваться в качестве загородного летнего дома или бани.
.....................................................................................................................................................................................................
.
ОСНОВНАЯ ИНФОРМАЦИЯ:
Количество этажей:2Количество спален1
Жилая площадьm2Площадь помещений всех этажей:m2
Площадь террас и балконов:m2Площадь кровли:m2
Площадь застройки:m2Цена:по запросу
Материал стен:Оцилиндрованное бревно естественной влажности (d=240 mm)*
Материал кровли:Керамическая черепица*
Фундамент:Свайно-ростверковый с монолитной плитой*
Окна:Деревянные*
*Материалы могут меняться в зависимости от пожеланий заказчика


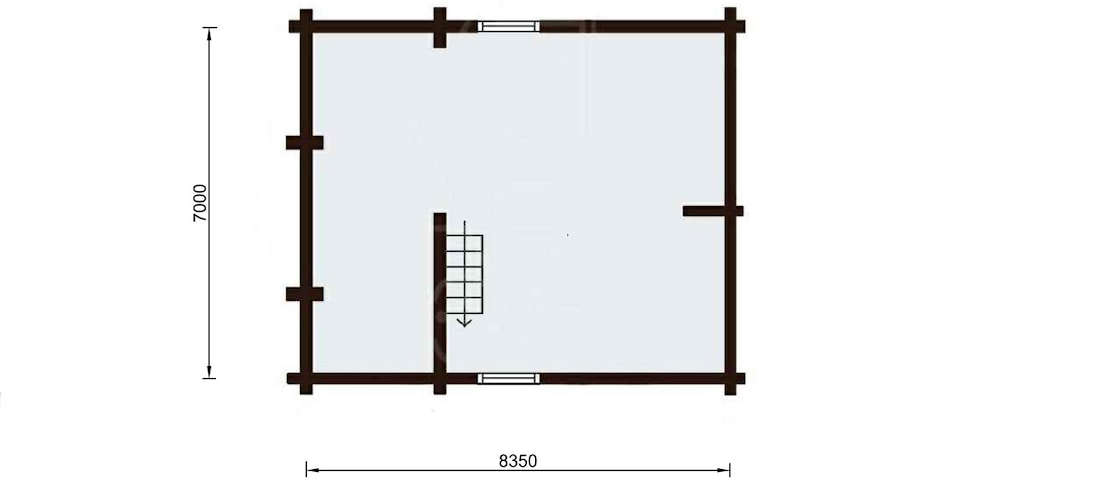
ПЛАНИРОВКА ДОМА:
.
На первом этаже расположились: кухня-гостиная (комната отдыха), моечная с санитарным узлом, сауна:

.
Второй этаж представляет собой пространство, которое можно использовать по своему усмотрению, например как спальную комнату: .
ФОТОЭКСКУРСИЯ ПО ДОМУ:
.
Общая комната разделенная на 2 части: кухонную и зону отдыха:

.

.

.
.
.
.
Лестница на второй этаж:

.
.
.
Пространство мансарды можно использовать как зону хранения или как спальную комнату:

.
.
.
Благодаря наличию второго света, со второго уровня можно наблюдать, что происходит в зоне отдыха первого этажа:

Современные финские деревянные дома

Финские деревянные дома уже давно по своей популярности пересекли границы Финляндии. Сегодня они пользуются заслуженной популярность практически на всей территории СНГ.

Необыкновенные проекты и качество строительства не оставляют равнодушными многих потребителей, которые решили обзавестись своим загородным домом. Применение в качестве строительного материала для его возведения качественной древесины позволяет выдерживать практически идеальное соотношение цена/качество.

Для строительства финского деревянного дома используют только породы хвойных деревьев, таких как сосна, ель. Это обеспечивает прочность постройки в течение всего срока его эксплуатации.

Сегодня времена изменились и чтобы построить дом совершенно необязательно тратить большие деньги и много времени. Использование современных технологий позволяет построить дом в значительно короткий срок, что привлекает многих потребителей.

Изготовленные из натурального дерева, брёвна финского деревянного дома сохраняют все его свойства, что в последующем передается дому, построенному из них. Это такие свойства как высокая влагостойкость, высокие теплоизоляционные и звукоизоляционные свойства.

Дерево, это уникальный материал, которое "дышит", а значить есть прекрасная возможность поддерживать внутри помещения микроклимат, который благотворно влияет на организм человека.

Финские деревянные дома в большинстве случаев не нуждаются в дополнительной отделке, так как и без этого выглядят эстетично и элегантно. Это позволяет сэкономить средства, которые тратятся на отделочные работы.

Если вы сторонник современного интерьера, у вас не возникнет больших трудностей, чтобы превратить внутреннее убранство дома в любой стиль оформления с применением современных отделочных материалов.

6


Категория
двухэтажные дома
Количество спален
1
Материал стен
бревно естественной влажности
Особенности
дом с сауной, дом с террасой


Если Вас заинтересовали описанные в статье товары и услуги, Вы можете:



Ещё из раздела Финские деревянные дома

    Летний финский дом с интересным пространственным решением и функциональной планировкой. Гостиная с высоким потолком, две спальни, одна из спален расположена на возвышении и не скрадывает пространства внутри всего дома, кухня, небольшая летняя ...
      Одноэтажный загородный летний дом площадью 108 метров. Просторная гостиная комната с камином, кухня-столовая и две спальни, два санузла, просторная терраса и небольшая веранда. План этажа дома Kalasääski Фотографии интерьера дома ...
        Небольшой деревянный дом с мансардным вторым этажом. Одна спальня, гостиная со вторым светом, два санузла, терраса вдоль основного фасада дома, кухня-столовая. Дом Tuomenkukka площадью 120 метров будет отлично смотреться вблизи водоема. Планы этажей ...
          Небольшой загородный финский дом с жилым мансардным этажом. На первом этаже - две спальни и два санузла, просторная гостиная с высоким потолком и вторым светом, кухня-столовая. На втором этаже - две спальни. Планы этажей дома Haukansiipi Планы ...
            Загородный дом с большой площадью застекления, прекрасно подходит для живописных мест, позволяя любоваться окрестными пейзажами. Планировка будет интересна небольшой семье, например, семье с двумя детьми. Площадь первого этажа 120 метра квадратных, ...
              Одноэтажный деревянный дома с гаражом. Две спальни, кухня, столовая, два санузла, небольшая терраса. Общая площадь дома 160 м.кв., площадь гаража 26 м.кв., вместо гаража может быть кладовая или хоз помещение. План этажа дома Napakettu Фотография ...
                Двухэтажный деревянный дом с каменным первым этажом. Дом включает три спальни, сауну, просторную гостиную, кухню-столовую, большую кладовку, гардеробную. Площадь дома 169 квадратных метра. Планы этажей деревянного дома Velaatta площадью 169 м² ...
                  Умиротворяющий дом с уютной террасой и балконом, позволит насладиться тишиной и спокойствием среди леса. Грамотная планировка дома позволит оптимально использовать пространство дома. В тоже время всегда можно принять и разместить гостей, организовав ...
                    Деревянный летний Финский дом на три спальни. Дом одноэтажный, выполнен из профилированного бруса естественной влажности или технической сушки. Возможно применение современного материала - клееного бруса исключающего растрескивание и деформацию в ...
                      Двухэтажный деревянный дом с террасой и верандой. Дом Kämmenniemi может быть выполнен в трех вариантах - общая площадь 200, 247 или 270 метров квадратных. Проект дома великолепно смотрится на участке в существенными перепадами высот. Планы ...
                        Современный финский дом из клееного бруса представлен в 211 м² и в 195 м². Высокий цокольный этаж - две спальни, санузел, гостиная с камином. На первом этаже расположены просторный холл-гостиная, кухня столовая, спальня, второй свет. ...
                          Деревянный Дом из клееного бруса с гаражом Elegant 184м2 , на первом этаже расположены гостиная с высоким потолком, кухня, два санузла, хозяйственные помещения, терраса, на втором этаже дома - две спальни, душевая, балкон. Проект этого финского ...
                          © 2025 ArchiLine Wooden Houses
                          Беларусь, 220068, г. Минск, ул. Некрасова, 114, офис 49.

                          Сайт работает на платформе Nestorclub.com