x
≡ каталог
О компании Галерея Контакты

Деревянный дом из бруса "Новый", 177 м²

Деревянный дом из бруса "Новый", 177 м²  Двухэтажный просторный деревянный дом "Новый" - это удачная планировка, простая и функциональная, современные и экологические материалы, красивый внешний вид. Дом отлично подойдет для большой семьи, ценящих комфорт и уют.
.....................................................................................................................................................................................................
.
ОСНОВНАЯ ИНФОРМАЦИЯ:
Количество этажей:2Количество спален4
Жилая площадь46,3 m2Площадь помещений всех этажей:164,75 m2
Площадь террас и балконов:41,80 m2Площадь кровли:219 m2
Площадь застройки:162 m2Цена:по запросу
Материал стен:Профилированный клеенный брус (200х185 mm)*
Материал кровли:Керамическая черепица*
Фундамент:Свайно-ростверковый с монолитной плитой*
Окна:Деревянные*
*Материалы могут меняться в зависимости от пожеланий заказчика


ПЛАНИРОВКА ДОМА:
.
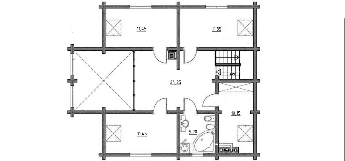
На первом этаже расположились: две террасы, тамбур, топочная, прихожая, совмещенный санитарный узел, гостиная, кухня-столовая и жилая комната площадью 11,55 m2:
.

.
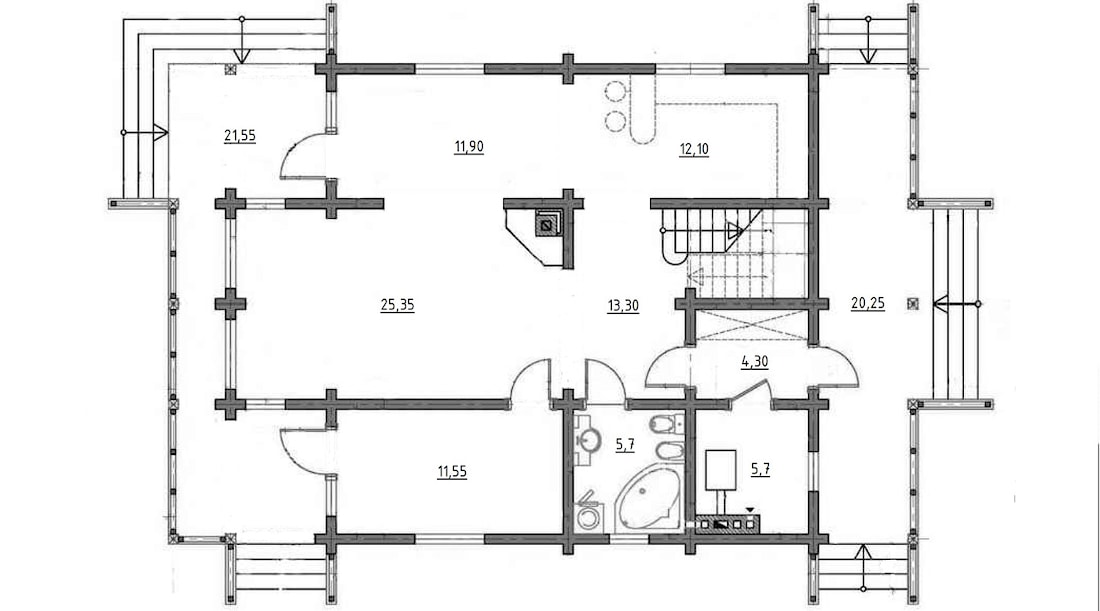
На втором: три спальные комнаты, совмещенный санитарный узел и кладовая:
.
.
ВНЕШНИЙ ВИД:
.
Фасад в светлых тонах гармонично сочетается с темной черепицей на крыше и настраивает на спокойствие.
Великолепный, просторный коттедж невозможно было бы исполнить без использования разнообразных составов Tikkurila, немецкой черепицы Roben цвета тобаго,а также клинкерного кирпича и облицовочной плитки Roben:
.
Второй свет и панорамные окна на первом этаже визуально расширяют пространство, а большие окна в пол на втором этаже создают дополнительное освещение: Деревянный дом из бруса "Новый"
.
Деревянный дом из бруса "Новый"
.
ДОМ НА ЭТАПЕ ПРОЕКТИРОВАНИЯ:
.

.

.


Категория
двухэтажные дома
Количество спален
4
Материал стен
клееный брус
Тэг
купить деревянный дом из бруса
Особенности
дом с террасой, дом со вторым светом


Если вас заинтересовала представленная информация или вы не нашли нужный товар или услугу, пожалуйста, позвоните или отправьте запрос на консультацию:



Ещё из раздела Деревянные Дома Топ-50 проектов

    Деревянный дом, проект "Лесной" из клееного бруса 143 м2 от белорусского предприятия. План дома: В наше время, когда все больше людей стремятся к естественности и экологичности, деревянные дома становятся все более популярными. Они не только красивы ...
      Что такое тепловой насос для отопления дома. Устройство и принцип работы. Тепловым насосом называют устройство, позволяющее осуществлять преобразование и перенос теплоты от какого-либо источника с низкой температурой к потребителю с более высокими ...
        Лаконичный одноэтажный дом из бруса с продуманной планировкой. Вмещает в себя две спальни, кабинет, совмещенные гостиную, столовую и кухню, просторный санузел, топочная, холл и тамбур. Входная группа оформлена террасой и витражными стеклами, через ...
        • Категория: двухэтажные дома
        • Количество спален: 3
        • Материал стен: брус технической сушки
        Дом из клеенного бруса с террасой "Жодино" - отличное решение для тех, кто ищет большой просторный дом для постоянного проживания. Три спальные комнаты, совмещенная кухня-гостиная, такой дом спокойно вмести в себя дружную семью. ...
        • Категория: одноэтажные дома
        • Количество спален: 1
        • Материал стен: брус технической сушки
        Дом с террасой «Уют» - отличное решение для тех, кто ищет проект небольшого загородного дома. Вместительная кухня-гостиная, спальная комната, ванная - в доме есть все необходимое для комфортного отдыха и проживания. ...
          Проект «Альпы» — это классический комбинированный дом, выполненный по проверенной технологии: прочный каменный первый этаж и уютный деревянный второй. Такое решение обеспечивает надёжность конструкции, долговечность и комфортный микроклимат для ...
            Деревянный дом в горах Алжира Предлагаем вашему вниманию проект дома из клееного бруса «Аиша», который запланирован к строительству в горах Алжира – страны, расположенной на севере Африки. Выполнение этого заказа требует от наших специалистов ...
            • Категория: одноэтажные дома
            • Количество спален: 2
            • Материал стен: брус технической сушки
            Вы всё ещё не знаете, какой первый шаг нужно сделать, чтобы осуществить свою мечту о деревянном доме? Компания ArchiLine Houses может дать вам однозначный ответ - начните с проекта! Идеи приходят в голову одна за одной, мысли летят от одного ...
            • Категория: трехэтажные дома
            • Количество спален: 2
            • Материал стен: бревно естественной влажности
            Дом в деревенском стиле «Сутоки» - небольшой деревянный дом с дополнительным освещением обеспеченным вторым светом. Три спальни, большая кухня-гостинная спокойна вместят большую семью из 4-6 человек. ...
            • Категория: двухэтажные дома
            • Количество спален: 2
            • Материал стен: клееный брус
            Деревянный дом из профилированного бруса с балконом "Роща" станет настоящей находкой для семьи из 3-4 человек, ведь этот проект именно та «золотая серединка», которую многие ищут. ...
            • Категория: двухэтажные дома
            • Количество спален: 4
            • Материал стен: клееный брус
            Дом из клееного бруса "Новое поле" - просторный деревянный дом с террасой, отлично подойдет для большой семьи. В доме каждый найдет для себя свой уютный угол (целых 4 спальни), а кухня-гостиная станет местом проведения дружных семейных встреч. ...
            • Категория: двухэтажные дома
            • Количество спален: 5
            • Материал стен: бревно технической сушки
            Бревенчатый дом "Красивый" - это большой, просторный дом с пятью спальнями. Данный коттедж отлично подойдет для большой семьи, которая любит проводить много время вместе, но при этом ценит личное пространство. ...
            © 2026
            ArchiLine Wooden Houses
            Беларусь, 220068, г. Минск, ул. Некрасова, 114, офис 49.

            Сайт работает на платформе Nestorclub.com